HI! SAYA SAHARUDIN TUNGGAL, EJEN HARTANAH BERDAFTAR (E2819) DARI LEGACY REAL PROPERTY SDN BHD (E11925/1342671-P)
3Sty ShopLot Office Alam Avenue 2 Seksyen 16 Padang Jawa Shah Alam For Sale!Listed by SAHARUDIN TUNGGALStatus: Sold |
This listing has been viewed 3176 times | |||||||||||||
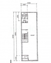
![]() ShopLot Office Alam Avenue 2 Seksyen 16 Padang Jawa |
ShopLot Office Alam Avenue 2 Seksyen 16 Padang Jawa ShopLot Office Alam Avenue 2 Seksyen 16 Padang Jawa ShopLot Office Alam Avenue 2 Seksyen 16 Padang Jawa ShopLot Office Alam Avenue 2 Seksyen 16 Padang Jawa ShopLot Office Alam Avenue 2 Seksyen 16 Padang Jawa |
|||||||||||||
Rumah Shop Lot ALAM AVENUE 2 SHAH ALAM Untuk Dijual - Ejen Hartanah BerdaftarRumah Di ALAM AVENUE 2 SHAH ALAM Untuk DijualRumah & Tanah Untuk Dijual Di SHAH ALAMRumah & Tanah Untuk Dijual Di Selangor
|
||||||||||||||

